Больше – лучше! Поддержит государство - поддержит и застройщик!
Какая квартира будет лучшим выбором для семьи с детьми? Ответ очевиден: чем больше, тем лучше. Ведь большая квартира – это много пространства для детей, возможность обустроить гостиную, родительскую и детские комнаты. И не забыть про свой комфорт и спокойствие.
Реализовать подобный сценарий предлагает группа компаний «Территория жизни»! Дан старт новой семейной акции «Больше – лучше»*, в рамках которой семья получает дополнительную выгоду до 2 750 000 рублей на покупку квартиры с готовой отделкой кухонным гарнитуром и техникой в сданных домах.
В рамках акции разработана система скидок для семей с детьми:
- Семьи с одним ребенком – скидка 10%;
- Семья с двумя детьми – скидка 15%;
- Семья с тремя и более детьми – скидка 20%.
«Сегодня застройщик активно поддерживает семьи с детьми вместе с государством. Дополнительную скидку до 2 750 000 рублей можно суммировать с государственными выплатами на улучшение жилищных условий. Вы также можете рассмотреть trade-in и реализовать свое жилье на вторичном рынке в зачет новой квартиры. Наши менеджеры проконсультируют вас, подобрав максимально выгодные условия покупки. Вы получаете готовую квартиру, возможность быстро переехать и комфортный платеж по ипотеке», - отмечает коммерческий директор ГК «Территория жизни» Оксана Маркова.
Классические планировки , просторные комнаты, готовая отделка, кухонный гарнитур и техника - составляющие комфорта для вас. Можете оценить свою будущую квартиру уже сейчас благодаря рум-туру.
Почему стоит воспользоваться скидкой прямо сейчас?
- Благодаря скидке* у вас уменьшается сумма первоначального взноса;
- Льготная ставка от 6 % годовых**;
- Возможность оформить дополнительную выплату от государства 1 000 000 рублей при покупке квартиры***.
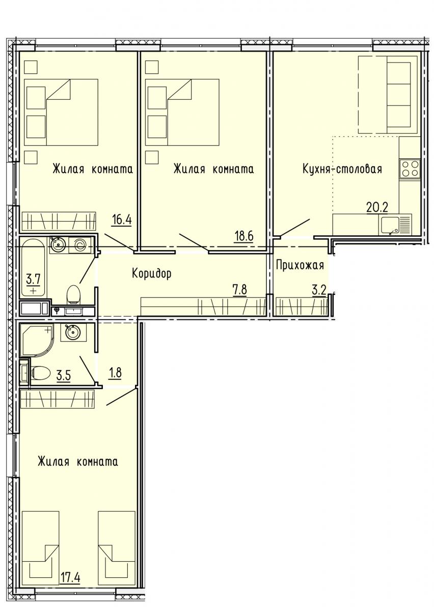
Рассмотрим на конкретном примере. Предлагаем трехкомнатную квартиру в 20-ом строении жилого комплекса «Лугометрия». Площадь более 92 кв.м.

Длинный просторный коридор, где можно сделать гардеробную. Вместительная кухня, которую можно переоборудовать под гостиную или столовую. И три жилые комнаты, которые можно использовать по своему желанию. Игротека, рабочее пространство, детская – ограничений нет.
(1).jpg)
Комфорт уже оценили жители «Лугометрии». «Нам очень нравится наша новая квартира, в которую мы недавно переехали с семьей. В нашей семье семь детей, всем хватает места, распределили пространство, создав и зону отдыха и учебную комнату, в которой дети занимаются уроками. И самое приятное – хороший размер ежемесячного платежа, который играет важную роль. Радует, что сегодня не только государство, но и застройщик уделяет внимание поддержке семей с детьми, помогая осуществить мечту о новой квартире», – рассказывает многодетная мама, жительница «Лугометрии» Марина Катальшова.
(1).jpg)
Фото из архива Марины Катальшовой.
Действие акции распространяется на 19 и 20-е строения жилого комплекса «Лугометрия», которые образуют двор «Алтей». Он давно стал «визитной карточкой» проекта, благодаря соблюдению передовых стандартов в области озеленения и архитектуры, современные детские и спортивные площадки от ведущих российских брендов, баланс между зелеными зонами и жилым пространством, разные зоны активности – все, что делает «Алтей» одним из лучших дворов.Качество проекта высоко оценивали как федеральные эксперты, так и жители, выбравшие «Лугометрию».
(1).jpg)
Приобретайте квартиры по выгодной цене в одном из лучших жилых комплексов региона! Получить консультацию от менеджеров команды ведущего застройщика региона ГК «Территория жизни» можно уже сейчас на сайте территорияжизни.рф. Чтобы узнать больше, вы можете позвонить по номеру единого колл-центра компании по телефону 203-000 или оставьте заявку на сайте.
Также мы вас ждем в наших офисах продаж, которые работают без перерывов и выходных.
· ул. 65-летия Победы, 29. Режим работы: с 9.00 до 21.00.
· ул. Яшиной, 12. Режим работы: с 9.00 до 21.00.
*Название акции «Больше лучше». В рамках акции семьям с детьми предоставляется дополнительная скидка 10 % - если в семье 1 ребенок, 15% если в семье – 2 ребенка, 20 % - если в семье 3 и более детей. На момент заключения договора платного бронирования документально подтвержденный возраст детей не должен превышать 18 лет. Максимальный размер скидки не более 2 750 000 рублей. В акции участвуют 3-комнатные квартиры площадью от 90 кв.м. в строениях расположенные по адресу: ул. Яшиной, 2, 4. Дома сданы. В квартирах выполнена отделка «Все включено»: ламинат, сантехника и санфаянс, межкомнатные двери, натяжные потолки, стиральная машина, кухонный гарнитур со встраиваемой техникой - духовой шкаф, варочная панель, вытяжка, посудомоечная машина. Срок действия акции от 9.04.2025 до 30.06.2025 г. Изучите все условия сделки! Оценивайте свои финансовые возможности! Подробности по телефону +7(8412) 203-000 и на сайте территорияжизни.рф.
**Ознакомьтесь с условиями кредитования! Оценивайте свои финансовые возможности! Ставка от 6% годовых доступна в рамках программы ПАО Сбербанк «Ипотека с государственной поддержкой для семей с детьми» на срок кредитования от 12 до 360 месяцев с условием субсидирования процентной ставки застройщиком – партнером Банка при приобретении строящегося жилья у юридического лица по ДДУ/ДУПТ или готовое жилье у застройщика – партнера Банка при первоначальном взносе от 20,1 % от стоимости кредитуемого жилого помещения. Минимальная сумма кредита – 300 тыс. руб. Максимальный размер кредита до 6 000 000 руб. Валюта – рубли РФ. Полная стоимость кредита- 6,302–17,811%. Кредит предоставляется гражданам РФ, имеющим несовершеннолетнего ребенка до 6 лет; установлена категория «ребенок-инвалид»; либо двое или более детей, граждане РФ, один из которых не достиг возраста 6 лет на дату заключения кредитного договора. Необходимо предоставление свидетельств о рождении и подтверждение гражданства всех детей. Генеральная лицензия Банка России на осуществление банковских операций № 1481 от 11.08.2015.
**С 31 марта 2025 года в Пензенской области начался приём заявок от многодетных семей на получение выплаты до 1 млн рублей при рождении третьего ребёнка или последующих детей. Сумма поддержки складывается из региональной выплаты (550 тыс. рублей) и федеральной выплаты (450 тыс. рублей) от АО "ДОМ.РФ". Право на меру поддержки имеют семьи, у которых третий ребёнок или последующие дети родились с 1 января 2025 года по 31 декабря 2027 года. Кредитный договор должен быть заключен до 1 июля 2028 года. Заявки принимаются через портал Госуслуг или в банке, выдавшем ипотечный займ. Срок действия акции с 31.03.2025 - 30.06.2025 г.
Реклама. ООО «МК». ИНН: 5835138537. Erid: 2VfnxxFobCC
